Piso en venta en Vitoria, Batán, de 155 m2 con 4 dormitorios, 3 baños, plaza de garaje, trastero y 3 terrazas por 630.000 €, Ref. 3845
Características del piso
- Referencia:
- 3845
- Precio:
- 630.000 €
- Tipo:
- Piso en venta
- Situación:
- Vitoria, Batán - Alava
- Superficie útil:
- 155 m2
- Superficie construida:
- 162 m2
- Equipamiento:
- A convenir
- Altura:
- 4º
- Salón:
- Salón
- Habitaciones:
- 4
- Baños:
- 3
- Terrazas:
- 3
- Plazas de garaje:
- 1 plaza
- Trastero:
- Sí
Descripción
Este MAGNIFICO PISO se encuentra en EL BATAN, una de las zonas más exclusivas de la ciudad. Situada a pocos minutos del centro urbano, la propiedad ofrece un entorno residencial de alto nivel con amplios paseos rodeados de vegetación, perfecto para quienes buscan comodidad y naturaleza en su día a día.
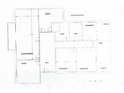
Con una superficie construida de 162 metros cuadrados, el piso está diseñado con un amplio y funcional espacio que se distribuye en cuatro habitaciones, tres baños completos, y una cocina independiente con acceso a una terraza cerrada. Además, dispone de dos terrazas abiertas, que permiten disfrutar de vistas y sol durante todo el día, y un luminoso estudio diáfano con chimenea, ideal para relajarse o como área de trabajo.
La vivienda está orientada en dirección este/oeste, lo que proporciona una excelente luminosidad natural en todas las estancias. Además, cuenta con calefacción individual a gas, lo que asegura un confort térmico en cualquier época del año.
Para mayor comodidad, el piso incluye una plaza de garaje con acceso directo desde el edificio y un trastero, ofreciendo soluciones de almacenamiento adicionales. Sin duda, una oportunidad única para quienes desean vivir en una de las mejores ubicaciones de la ciudad, con todas las comodidades y servicios a su alcance.
Calificación energética
| Escala de la calificación energética | Consumo de energía kw h/m2 año | Emisiones kg CO2/m2 año |
|---|---|---|
A | 275 | 59 |
B | 275 | 59 |
C | 275 | 59 |
D | 275 | 59 |
E | 275 | 59 |
F | 275 | 59 |
G | 275 | 59 |


